Explore our thoughtfully designed spaces created to support recovery, healing, and community living
Core Recovery Home is designed with intention and care, creating an environment that promotes healing, community, and personal growth. Our multi-building home spans over 47,045 square feet total and currently accommodates up to 16 residents with room to grow, providing a supportive, home-like atmosphere across multiple residences.
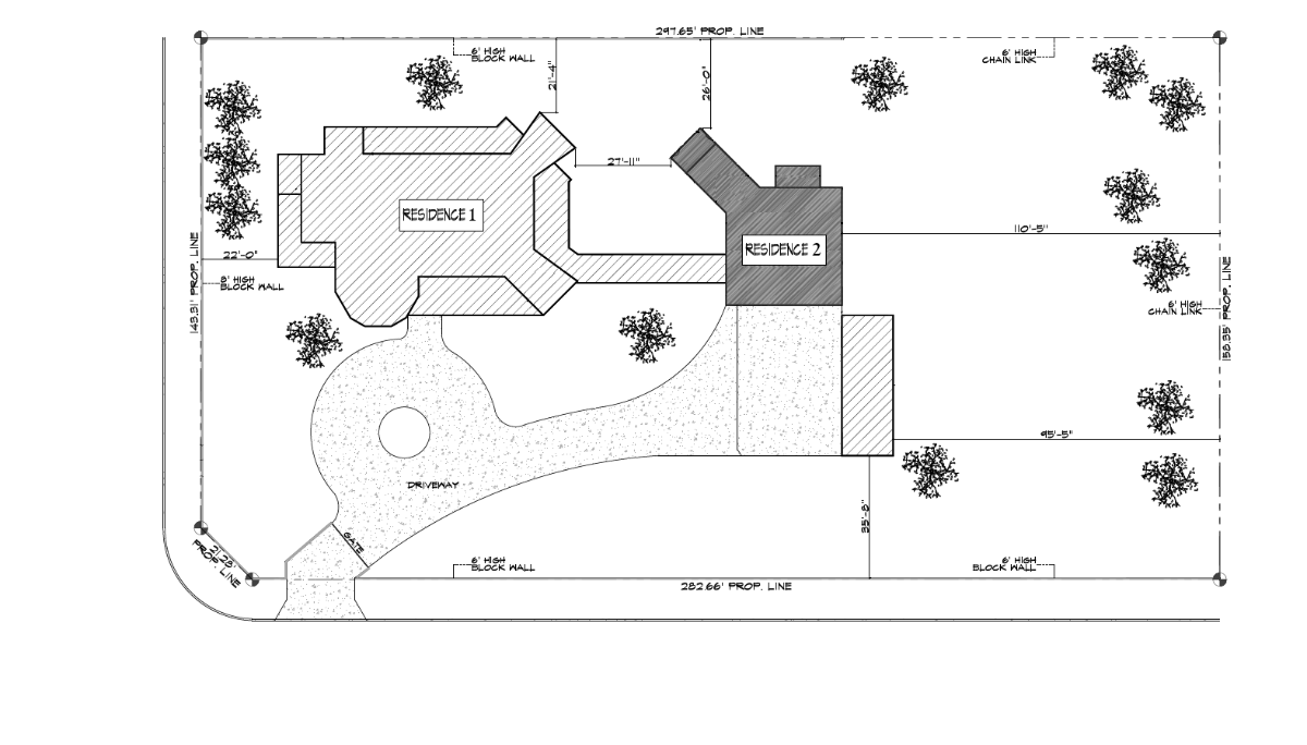
Our campus includes Residence #1 which serves as the community hub, plus Residence #2 which provides additional living spaces for residents seeking more independence. Each building serves a specific purpose in the recovery journey, with Residence #1 fostering community interaction and daily living activities, while our secondary residence offers transitional living opportunities. Our thoughtful design allows for future expansion to serve more individuals in need of recovery support.
Room and bed configurations are flexible and arranged on a needs basis to best serve our residents' individual recovery journeys. We understand that each person's path to healing is unique, so our living arrangements can be adjusted to provide the most supportive environment for each resident's current stage of recovery and personal circumstances.
The layout emphasizes natural light, open spaces for gathering, and quiet areas for personal time. We've incorporated elements of biophilic design, including indoor plants, natural materials, and views of our landscaped outdoor spaces to create a calming, therapeutic environment.
Safety and accessibility are paramount in our design. All areas are ADA compliant, with wide corridors, accessible bathrooms, and emergency systems throughout. The home also includes outdoor patios, a garden area, and recreational spaces that extend the healing environment beyond our walls.
Our Home is designed with flexibility in mind, allowing us to accommodate additional residents as our community grows. Our current capacity of 16 residents provides an intimate, supportive environment with the infrastructure to expand when needed.
Our residential areas house comfortable private and semi-private rooms designed for rest and personal reflection. Each room is thoughtfully designed with natural light, storage space, and a peaceful atmosphere to support recovery and healing. The residential floor currently houses 16 residents comfortably, with thoughtful design that allows for future expansion.
Flexible Accommodations: Room assignments and bed configurations are arranged on a needs basis to ensure each resident receives the most appropriate living situation for their recovery stage, personal preferences, and therapeutic requirements. Our adaptable approach allows us to provide personalized support while maintaining a harmonious community environment.
Complete layout showing our home and surrounding grounds

Sqft Living Spaces
47,045 Square Feet Total
Current Capacity
Room to Grow
Residences
Full-service kitchen for nutritious meal preparation
Comfortable spaces for socializing and group activities
Peaceful individual and shared living spaces
Professional spaces for counseling and treatment
Equipment and space for physical wellness
Outdoor areas for reflection and recreation
Reliable connectivity throughout the home
Ample parking for residents and visitors
Round-the-clock safety and monitoring systems
Schedule a tour to see our thoughtfully designed spaces in person and learn how our environment supports recovery. With room to grow, we're building a lasting foundation for healing.
Contact Us